0
4 Pièce(s)
3 Chambre(s)

MAISONS-ALFORT - 4P 92 M² + TERRASSE 23 M² + PARKING - AUX PIEDS DU METRO 8

Maisons-Alfort (94700)
Réf : 826D

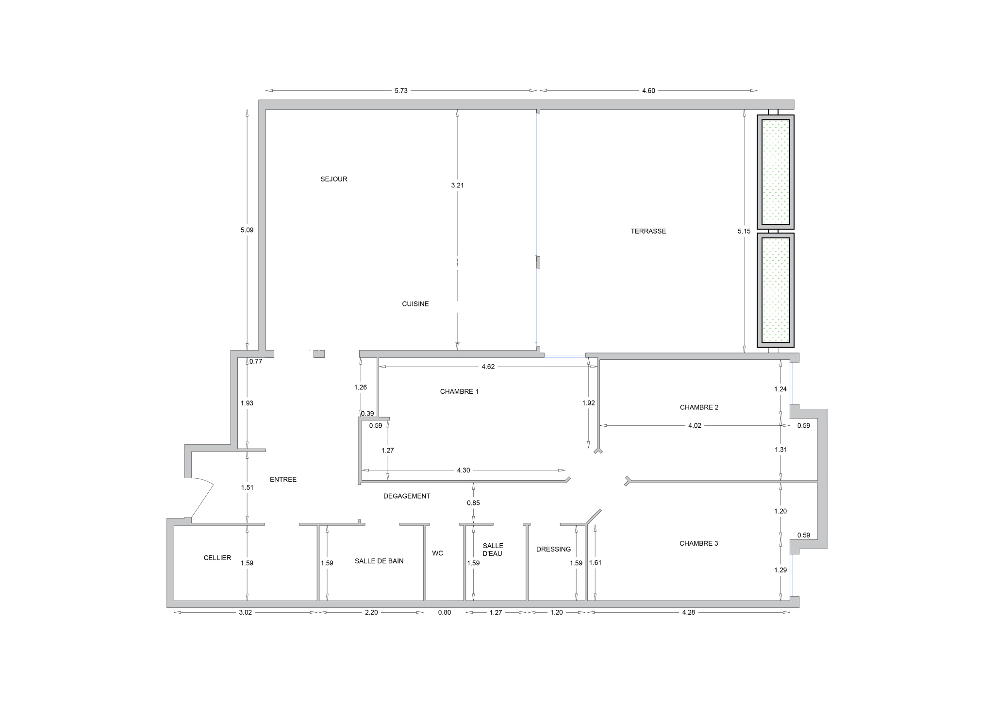
MAISONS-ALFORT - Au sein d'une copropriété bien entretenue avec Gardien, venez découvrir cet appartement "CLE EN MAIN" de 4 pièces principales de 92m² avec une TERRASSE de 23m² et place de PARKING.

 

L'EMPLACEMENT :

Situé aux JUILLIOTTES, cet appartement bénéficie d'une proximité immédiate avec les commerces, les écoles et les bus.

La ligne 8 du METRO se trouve aux pieds de la copropriété, offrant une accessibilité parfaite pour une vie pratique et agréable.

 

AGENCEMENT :

Vous serez séduit par cet appartement fonctionnel aux volumes généreux qui se compose de :

  • une vaste entrée avec grand placard,
  • un cellier / buanderie
  • un séjour lumineux donnant accès à une TERRASSE de 23m² sans vis-à-vis exposé SUD / EST
  • une cuisine US entièrement équipée et aménagée
  • trois chambres avec placards dont une donnant accès à la terrasse
  • un dressing
  • une salle d'eau rénovée en 2021
  • une buanderie (pouvant être transformée en salle d'eau supplémentaire)
  • WC séparés

PARKING sécurisé !


LES PLUS :

PROXIMITE IMMEDIATE DU METRO (2min) et des commerces aux pieds de l'immeuble

Appartement spacieux, bénéficiant d'une TERRASSE de 23m² Exposée S/E.

Cuisine US moderne.

Nombreux rangements.

Chauffage GEOTHERMIE.

Parties communes rénovées récemments

Aucun travaux à prévoir.

Local vélo / Poussettes

GARDIEN.

Espaces verts.

UN PARKING SECURISE 

 

L'AVIS DU CONSEILLER :

Au sein d'une copropriété bien entretenue et sécurisée, cet appartement "Clé en main" est idéal pour une famille à la recherche de confort et de sérénité, dans un quartier agréable et proche de toutes les commodités.

COUP DE COEUR Garanti !!

 

CONTACTEZ-NOUS dès maintenant pour organiser une visite et découvrir votre futur chez-vous.

Les informations sur les risques auxquels ce bien est exposé sont disponibles sur le site Géorisques : georisques.gouv.fr.

 

DPE : D
Budget prévisionnel à la charge du copropriétaire :395 € TOUT COMPRIS (chauffage géothermie)


Les honoraires sont à la charge du vendeur.

Lots à usage d'habitation, de commerces, de bureaux : 222

DIRECT IMMOBILIER EXPERT : 01 89 47 01 97
Les honoraires sont à la charge du vendeur. Les informations sur les risques auxquels ce bien est exposé sont disponibles sur le site Géorisques : georisques.gouv.fr. Montant estimé des dépenses annuelles d'énergie pour un usage standard entre 1360€ et 1870€, indexées à l'année 2021 (abonnements compris). Budget Prévisionnel à la charge des copropriétaires (charges courantes) : 395€ / mois. Lots n°1040: La copropriété ne faisant l'objet d'aucune procédure en cours citée à l'article L. 721-1 du code de la construction et de l'habitation.

(Estimation gratuite de votre bien sur simple demande)

Ce bien vous intéresse ?
Fieldset par défaut
Fieldset par défaut
Validation

* Champs obligatoires

Contacter l'agence
Validation
Les informations recueillies sur ce formulaire sont enregistrées dans un fichier informatisé par La Boite Immo agissant comme Sous-traitant du traitement pour la gestion de la clientèle/prospects de l'Agence / du Réseau qui reste Responsable du Traitement de vos Données personnelles. La base légale du traitement repose sur l'intérêt légitime de l'Agence / du Réseau. Elles sont conservées jusqu'à demande de suppression et sont destinées à l'Agence / au Réseau. Conformément à la loi « informatique et libertés », vous disposez des droits d’accès, de rectification, d’effacement, d’opposition, de limitation et de portabilité de vos données. Vous pouvez retirer votre consentement à tout moment en contactant directement l’Agence / Le Réseau. Consultez le site https://cnil.fr/fr pour plus d’informations sur vos droits. Si vous estimez, après avoir contacté l'Agence / le Réseau, que vos droits « Informatique et Libertés » ne sont pas respectés, vous pouvez adresser une réclamation à la CNIL. Nous vous informons de l’existence de la liste d'opposition au démarchage téléphonique « Bloctel », sur laquelle vous pouvez vous inscrire ici : https://www.bloctel.gouv.fr Dans le cadre de la protection des Données personnelles, nous vous invitons à ne pas inscrire de Données sensibles dans le champ de saisie libre.
Ce site est protégé par reCAPTCHA, les Politiques de Confidentialité et les Conditions d'Utilisation de Google s'appliquent.

En Bref

Code postal 94700
Surface habitable (m²) 92,30 m²
Surface loi Carrez (m²) 92,30 m²
Nombre de chambre(s) 3
Nombre de pièces 4
Etage 3
Ascenseur OUI
Vue Sans vis-à-vis
Nb de salle d'eau 1
Cuisine Américaine
Type de cuisine Equipée
Mode de chauffage Géothermie
Type de chauffage Radiateur
Format de chauffage Collectif
Interphone OUI
Terrasse OUI
Exposition Sud-Est
Année de construction 1975
Quartier Centre Ville, Juilliottes

Infos financières

Prix de vente honoraires TTC inclus 440 000 €
Charges 395 €
Taxe foncière annuelle 1 810 €

Energie

Energie
DPE
GES